By using this site, you agree to the Privacy Policy and Terms of Use.
Accept
City of Larnaca
  • ΤΟΠΙΚΑ ΝΕΑ
    • Τοπικά Γενικά
    • Έχουμε Θέμα
    • Όμορφα της Πόλης
    • Πολιτική
    • Αστυνομικά Νέα
    • Τοπική Αυτοδιοίκηση
    • Οικονομία
    • Επιχειρήσεις
    • Εκπαίδευση
    • Κοινωνία
    • Πολιτιστικά
    • Περιβάλλον
    • Αθλητικά Νέα
  • ΝΕΑ ΔΗΜΩΝ
    • Δήμος Λάρνακας
    • Δήμος Αραδίππου
    • Δήμος Δρομολαξιάς – Μενεού
    • Δήμος Αθηένου
    • Δήμος Λευκάρων
  • ΕΠΙΚΑΙΡΟΤΗΤΑ
  • Επιχειρηματικοτητα
    • Νέα Eπιχειρήσεων
    • Ανάπτυξη Γης
    • Τουρισμός
    • Εκπαίδευση
    • Πρόσωπα
    • Τοπική Αυτοδιοίκηση
    • Νέες Αφίξεις
    • Ευρετήριο Επιχειρήσεων
    • Θέσεις Εργασίας
    • Γενικά
  • Διασκεδαση
    • Έξοδος
    • Φαγητό
    • Θέατρο
    • Εκδηλώσεις
    • Τέχνη
    • Ατζέντα Εκδήλωσεων
  • Τουρισμος
    • Ειδήσεις Τουρισμού
    • Τουριστικές Πληροφορίες
    • Καταλύματα
    • Εστιατόρια
    • Δραστηριότητες
    • Υπηρεσίες
  • ΛΑΡΝΑΚΑ 2030
  • Podcast
  • ΑΚΙΝΗΤΑ
    • Προσθήκη Ακινήτου
  • ΘΕΣΕΙΣ ΕΡΓΑΣΙΑΣ
Reading: Λάρνακα: Έτσι θα μοιάζει το πάρκο «ΣΑΛΙΝΑ» των €2,4 εκατ. (Φώτος)
Αγγελία
City of Larnaca
  • ΤΟΠΙΚΑ ΝΕΑ
    • Τοπικά Γενικά
    • Έχουμε Θέμα
    • Όμορφα της Πόλης
    • Πολιτική
    • Αστυνομικά Νέα
    • Τοπική Αυτοδιοίκηση
    • Οικονομία
    • Επιχειρήσεις
    • Εκπαίδευση
    • Κοινωνία
    • Πολιτιστικά
    • Περιβάλλον
    • Αθλητικά Νέα
  • ΝΕΑ ΔΗΜΩΝ
    • Δήμος Λάρνακας
    • Δήμος Αραδίππου
    • Δήμος Δρομολαξιάς – Μενεού
    • Δήμος Αθηένου
    • Δήμος Λευκάρων
  • ΕΠΙΚΑΙΡΟΤΗΤΑ
  • Επιχειρηματικοτητα
    • Νέα Eπιχειρήσεων
    • Ανάπτυξη Γης
    • Τουρισμός
    • Εκπαίδευση
    • Πρόσωπα
    • Τοπική Αυτοδιοίκηση
    • Νέες Αφίξεις
    • Ευρετήριο Επιχειρήσεων
    • Θέσεις Εργασίας
    • Γενικά
  • Διασκεδαση
    • Έξοδος
    • Φαγητό
    • Θέατρο
    • Εκδηλώσεις
    • Τέχνη
    • Ατζέντα Εκδήλωσεων
  • Τουρισμος
    • Ειδήσεις Τουρισμού
    • Τουριστικές Πληροφορίες
    • Καταλύματα
    • Εστιατόρια
    • Δραστηριότητες
    • Υπηρεσίες
  • ΛΑΡΝΑΚΑ 2030
  • Podcast
  • ΑΚΙΝΗΤΑ
    • Προσθήκη Ακινήτου
  • ΘΕΣΕΙΣ ΕΡΓΑΣΙΑΣ
Reading: Λάρνακα: Έτσι θα μοιάζει το πάρκο «ΣΑΛΙΝΑ» των €2,4 εκατ. (Φώτος)
Sign In
  • Join US
Προσθήκη Αγγελίας
City of LarnacaCity of Larnaca
Font ResizerAa
Search
  • ΤΟΠΙΚΑ ΝΕΑ
    • Τοπικά Γενικά
    • Έχουμε Θέμα
    • Όμορφα της Πόλης
    • Πολιτική
    • Αστυνομικά Νέα
    • Τοπική Αυτοδιοίκηση
    • Οικονομία
    • Επιχειρήσεις
    • Εκπαίδευση
    • Κοινωνία
    • Πολιτιστικά
    • Περιβάλλον
    • Αθλητικά Νέα
  • ΝΕΑ ΔΗΜΩΝ
    • Δήμος Λάρνακας
    • Δήμος Αραδίππου
    • Δήμος Δρομολαξιάς – Μενεού
    • Δήμος Αθηένου
    • Δήμος Λευκάρων
  • ΕΠΙΚΑΙΡΟΤΗΤΑ
  • Επιχειρηματικοτητα
    • Νέα Eπιχειρήσεων
    • Ανάπτυξη Γης
    • Τουρισμός
    • Εκπαίδευση
    • Πρόσωπα
    • Τοπική Αυτοδιοίκηση
    • Νέες Αφίξεις
    • Ευρετήριο Επιχειρήσεων
    • Θέσεις Εργασίας
    • Γενικά
  • Διασκεδαση
    • Έξοδος
    • Φαγητό
    • Θέατρο
    • Εκδηλώσεις
    • Τέχνη
    • Ατζέντα Εκδήλωσεων
  • Τουρισμος
    • Ειδήσεις Τουρισμού
    • Τουριστικές Πληροφορίες
    • Καταλύματα
    • Εστιατόρια
    • Δραστηριότητες
    • Υπηρεσίες
  • ΛΑΡΝΑΚΑ 2030
  • Podcast
  • ΑΚΙΝΗΤΑ
    • Προσθήκη Ακινήτου
  • ΘΕΣΕΙΣ ΕΡΓΑΣΙΑΣ
Follow US
© 2025 cityoflarnaka.com | All rights reserved. Developed with care by Novemind.
City of Larnaca > Blog > Going Out > Λάρνακα: Έτσι θα μοιάζει το πάρκο «ΣΑΛΙΝΑ» των €2,4 εκατ. (Φώτος)
Going Out

Λάρνακα: Έτσι θα μοιάζει το πάρκο «ΣΑΛΙΝΑ» των €2,4 εκατ. (Φώτος)

Alexandros Elia
Τελευταία ενημέρωση: 17 Μαΐου, 2025 4:23 μμ
Από Alexandros Elia
3 Λεπτά Ανάγνωσης
Κοινοποίηση
ΚΟΙΝΟΠΟΙΗΣΗ
Advertisements

Πηγή: brief.com.cy

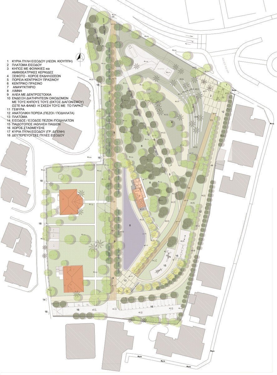
Βγήκε με διαγωνισμό ο Δήμος Λάρνακας – Τι θα περιλαμβάνει  το έργο

Διαγωνισμό για την δημιουργία του Δημοτικού Πάρκου «ΣΑΛΙΝΑ» προκήρυξε ο Δήμος Λάρνακας.

Σύμφωνα με τα έγγραφα του διαγωνισμού, το έργο θα κοστίσει γύρω στα  €2.414.000 και κατασκευάζεται στα πλαίσια της προσπάθειας του Δήμου Λάρνακας για δημιουργία και ανακατασκευή νέων χώρων πρασίνου στην πόλη αλλά και στα πλαίσια της ωρίμανσης των νέων έργων.

Όσο αφορά την χρηματοδότηση του, το έργο δύναται να συγχρηματοδοτηθεί από την Ευρωπαϊκή Ένωση, την Κυπριακή Δημοκρατία και τον Δήμο Λάρνακας. 

 

RIA COURT 71 – Το έργο του Ομίλου Λειβαδιώτη που θα γειτνιάζει με το μοναδικό πάρκο ΣΑΛΙΝΑ

 

Σημειώνεται ότι το έργο θα γίνει στο χώρο πρώην Κατοικίας Επάρχου και Αστυνομικού Διευθυντή, για χρήση από τους δημότες.

Ο σχεδιασμός του θα περιλαμβάνει μεταξύ άλλων:

  • χώρους ενεργητικής και παθητικής ψυχαγωγίας
  • υγιή ανάπτυξη και αναζωογόνηση του αστικού περιβάλλοντος
  • βελτίωση και προβολή του χώρου με εμπλουτισμό της υφιστάμενης φύτευσης, με  κατάλληλη τοπιοτέχνηση και με την ένταξη σύγχρονων στοιχείων που να συνάδουν με το χώρο
  • δημιουργία νέων θέσεων εργασίας τόσο κατά την κατασκευή του πάρκου, όσο και κατά τη λειτουργία του, βελτίωση των περιβαλλοντικών παραμέτρων με σωστό σχεδιασμό προσέλκυση των κατοίκων και επισκεπτών όλων των ηλικιών
  • διευρυμένη πρόσβαση και χρήση για ΑΜΕΑ
  • λειτουργική, αισθητική και ποιοτική βελτίωση του χώρου
  • συσχέτιση του χώρου με τη γύρω περιοχή και  με το χώρο του Δημοτικού Κήπου Λάρνακας

v

Σύμφωνα με τον Δήμο Λάρνακας, η ανάπλαση του χώρου θα είναι τέτοια ώστε να αποτελέσει πνεύμονα πρασίνου και σημείο ψυχαγωγίας, άθλησης, ανάπαυσης και κοινωνικής συναναστροφής.

Στόχος είναι, σύμφωνα με τον Δήμο, να δοθεί στην περιοχή και γενικά στο κέντρο της πόλης, χαρακτήρας και  ατμόσφαιρα που  να ικανοποιεί τις προσδοκίες των  κατοίκων της αλλά και των επισκεπτών. Επίσης, στόχος είναι η επίτευξη αειφορίας σε σχέση με την βελτίωση του περιβάλλοντος και της ποιότητας ζωής.

Η διάρκεια εκτέλεσης της σύμβασης υπολογίζεται σε 30 μήνες, συγκεκριμένα  οι πρώτοι 18 μήνες αφορούν την ημερομηνία έναρξης του έργου μέχρι την έκδοση του Πιστοποιητικού Παραλαβής και μετέπειτα οι 12 μήνες αφορούν την περίοδο ευθύνης ελαττωμάτων.

Novemind

Οι προσφορές μπορούν να υποβληθούν μέχρι τις 16/12/2022 και ώρα 12:00 το μεσημέρι, μέσω του Ηλεκτρονικού Συστήματος Σύναψης Συμβάσεων (eProcurement) στον χώρο του διαγωνισμού.

Σύμφωνα με τον Δήμο Λάρνακας, η μελέτη του έργου έγινε από την αρχιτέκτονα κα. Έλενα Σοφιανού-Ολυμπίου με ομάδα συμβούλων μελετητών, η οποία απέσπασε το πρώτο βραβείο στο Αρχιτεκτονικό Διαγωνισμό για τη δημιουργία του «Δημοτικού Πάρκου Σαλίνα».

Δείτε πως θα μοιάζει το πάρκο:

tjr

trh

 

 

ivu

uigl

luf

ys

uykdluig

estset

test

Κοινοποιήστε αυτό το άρθρο
Facebook Email Copy Link Print

Δύο νέες ταινίες κάνουν πρέμερια σήμερα στις κινηματογραφικές αίθουσες

Το 2ο Διεθνές Φεστιβάλ Φαγητού με γεύσεις και πιάτα από όλο τον κόσμο ξεκινάει αύριο! Ελάτε να περάσετε ένα υπέροχο και ξεχωριστό ΠαρασκευοΣάββατοΚυρίακο

«Χριστούγεννα στην πόλη μας» παρέα με την ΠΕΤΡΟΛΙΝΑ

Λάρνακα: Μουσική παράσταση- «Διασχίζοντας την Ευρώπη, διασχίζοντας τους καιρούς»

Οι νέες ταινίες της εβδομάδας

More Popular from Foxiz

Νέα Eπιχειρήσεων

Τα Top 10 ακίνητα στους ισολογισμούς της Τρ. Κύπρου

Alexandros Elia
0 Λεπτά Ανάγνωσης

Τα καταστήματα ZARA ζητούν 29 άτομα για εργασία με μέχρι 1200 ευρώ το μήνα

Alexandros Elia

Πραγματοποιείται σήμερα συνέδριο για την αναβάθμιση

Alexandros Elia
0 Λεπτά Ανάγνωσης
- Advertisement -
Ad image
Νέα Eπιχειρήσεων

Επεκτείνεται η Connected Sky με νέο γραφείο στο Χονγκ Κονγκ

Η εταιρεία, ConnectedSky,  ανακοίνωσε πρόσφατα την επέκτασή  της στην Ασία. Η εταιρεία της οποίας ιδιοκτήτης είναι…

Alexandros Elia
Νέα Eπιχειρήσεων

Η ομορφιά θέλει τον ειδικό της

Η περιποίηση και η ομορφιά δεν είναι εύκολη υπόθεση. Ένα πετυχημένο αποτέλεσμα χρειάζεται τον ειδικό του.…

Alexandros Elia
Νέα Eπιχειρήσεων

Antonis intreview

BLUE AIR     Τι σε ώθησε να εργαστείς σε μια τέτοιου είδους βιομηχανία? Νομίζω η…

Alexandros Elia
Νέα Eπιχειρήσεων

Tus: Στα ελληνικά νησιά από 24 Ιουνίου

Alexandros Elia
Νέα Eπιχειρήσεων

Γενικές Ασφάλειες Κύπρου: Σταθερή προσήλωση στον άνθρωπο

Οι Γενικές Ασφάλειες Κύπρου, από την ίδρυση τους το 1951, διαδραμάτισαν ηγετικό ρόλο στην ανάπτυξη της…

Alexandros Elia
City of Larnaca

Η City of Larnaka φέρνει κοντά σας τα τελευταία νέα, εκδηλώσεις και ιστορίες από τη Λάρνακα, κρατώντας σας συνδεδεμένους με ό,τι συμβαίνει στην πολυσύνθετη πόλη μας.

Νέα & Ενημερώσεις

  • Τοπικά Νέα
  • Νέα Δήμων
  • Πολιτιστικά
  • Κοινωνία
  • Οικονομία
  • Περιβάλλον

Ενότητες

  • Επιχειρήσεις
  • Αθλητικά Νέα
  • Διασκέδαση
  • Τουρισμός
  • Podcast
  • Λάρνακα 2030

Χρήσιμα

  • Διαφημίστειτε Μαζί Μας
  • Ευρετήριο Επιχειρήσεων
  • Θέσεις Εργασίας
  • Εκδηλώσεις
  • Επικοινωνία
© 2025 cityoflarnaka.com | All rights reserved. Developed with care by Novemind.