By using this site, you agree to the Privacy Policy and Terms of Use.
Accept
City of Larnaca
  • ΤΟΠΙΚΑ ΝΕΑ
    • Τοπικά Γενικά
    • Έχουμε Θέμα
    • Όμορφα της Πόλης
    • Πολιτική
    • Αστυνομικά Νέα
    • Τοπική Αυτοδιοίκηση
    • Οικονομία
    • Επιχειρήσεις
    • Εκπαίδευση
    • Κοινωνία
    • Πολιτιστικά
    • Περιβάλλον
    • Αθλητικά Νέα
  • ΝΕΑ ΔΗΜΩΝ
    • Δήμος Λάρνακας
    • Δήμος Αραδίππου
    • Δήμος Δρομολαξιάς – Μενεού
    • Δήμος Αθηένου
    • Δήμος Λευκάρων
  • ΕΠΙΚΑΙΡΟΤΗΤΑ
  • Επιχειρηματικοτητα
    • Νέα Eπιχειρήσεων
    • Ανάπτυξη Γης
    • Τουρισμός
    • Εκπαίδευση
    • Πρόσωπα
    • Τοπική Αυτοδιοίκηση
    • Νέες Αφίξεις
    • Ευρετήριο Επιχειρήσεων
    • Θέσεις Εργασίας
    • Γενικά
  • Διασκεδαση
    • Έξοδος
    • Φαγητό
    • Θέατρο
    • Εκδηλώσεις
    • Τέχνη
    • Ατζέντα Εκδήλωσεων
  • Τουρισμος
    • Ειδήσεις Τουρισμού
    • Τουριστικές Πληροφορίες
    • Καταλύματα
    • Εστιατόρια
    • Δραστηριότητες
    • Υπηρεσίες
  • ΛΑΡΝΑΚΑ 2030
  • Podcast
  • ΑΚΙΝΗΤΑ
    • Προσθήκη Ακινήτου
  • ΘΕΣΕΙΣ ΕΡΓΑΣΙΑΣ
Reading: H NEWZOE DEVELOPERS LTD ανακοινώνει την έναρξη εργασιών του συγκροτήματος SOPHIA GARDENS
Αγγελία
City of Larnaca
  • ΤΟΠΙΚΑ ΝΕΑ
    • Τοπικά Γενικά
    • Έχουμε Θέμα
    • Όμορφα της Πόλης
    • Πολιτική
    • Αστυνομικά Νέα
    • Τοπική Αυτοδιοίκηση
    • Οικονομία
    • Επιχειρήσεις
    • Εκπαίδευση
    • Κοινωνία
    • Πολιτιστικά
    • Περιβάλλον
    • Αθλητικά Νέα
  • ΝΕΑ ΔΗΜΩΝ
    • Δήμος Λάρνακας
    • Δήμος Αραδίππου
    • Δήμος Δρομολαξιάς – Μενεού
    • Δήμος Αθηένου
    • Δήμος Λευκάρων
  • ΕΠΙΚΑΙΡΟΤΗΤΑ
  • Επιχειρηματικοτητα
    • Νέα Eπιχειρήσεων
    • Ανάπτυξη Γης
    • Τουρισμός
    • Εκπαίδευση
    • Πρόσωπα
    • Τοπική Αυτοδιοίκηση
    • Νέες Αφίξεις
    • Ευρετήριο Επιχειρήσεων
    • Θέσεις Εργασίας
    • Γενικά
  • Διασκεδαση
    • Έξοδος
    • Φαγητό
    • Θέατρο
    • Εκδηλώσεις
    • Τέχνη
    • Ατζέντα Εκδήλωσεων
  • Τουρισμος
    • Ειδήσεις Τουρισμού
    • Τουριστικές Πληροφορίες
    • Καταλύματα
    • Εστιατόρια
    • Δραστηριότητες
    • Υπηρεσίες
  • ΛΑΡΝΑΚΑ 2030
  • Podcast
  • ΑΚΙΝΗΤΑ
    • Προσθήκη Ακινήτου
  • ΘΕΣΕΙΣ ΕΡΓΑΣΙΑΣ
Reading: H NEWZOE DEVELOPERS LTD ανακοινώνει την έναρξη εργασιών του συγκροτήματος SOPHIA GARDENS
Sign In
  • Join US
Προσθήκη Αγγελίας
City of LarnacaCity of Larnaca
Font ResizerAa
Search
  • ΤΟΠΙΚΑ ΝΕΑ
    • Τοπικά Γενικά
    • Έχουμε Θέμα
    • Όμορφα της Πόλης
    • Πολιτική
    • Αστυνομικά Νέα
    • Τοπική Αυτοδιοίκηση
    • Οικονομία
    • Επιχειρήσεις
    • Εκπαίδευση
    • Κοινωνία
    • Πολιτιστικά
    • Περιβάλλον
    • Αθλητικά Νέα
  • ΝΕΑ ΔΗΜΩΝ
    • Δήμος Λάρνακας
    • Δήμος Αραδίππου
    • Δήμος Δρομολαξιάς – Μενεού
    • Δήμος Αθηένου
    • Δήμος Λευκάρων
  • ΕΠΙΚΑΙΡΟΤΗΤΑ
  • Επιχειρηματικοτητα
    • Νέα Eπιχειρήσεων
    • Ανάπτυξη Γης
    • Τουρισμός
    • Εκπαίδευση
    • Πρόσωπα
    • Τοπική Αυτοδιοίκηση
    • Νέες Αφίξεις
    • Ευρετήριο Επιχειρήσεων
    • Θέσεις Εργασίας
    • Γενικά
  • Διασκεδαση
    • Έξοδος
    • Φαγητό
    • Θέατρο
    • Εκδηλώσεις
    • Τέχνη
    • Ατζέντα Εκδήλωσεων
  • Τουρισμος
    • Ειδήσεις Τουρισμού
    • Τουριστικές Πληροφορίες
    • Καταλύματα
    • Εστιατόρια
    • Δραστηριότητες
    • Υπηρεσίες
  • ΛΑΡΝΑΚΑ 2030
  • Podcast
  • ΑΚΙΝΗΤΑ
    • Προσθήκη Ακινήτου
  • ΘΕΣΕΙΣ ΕΡΓΑΣΙΑΣ
Follow US
© 2025 cityoflarnaka.com | All rights reserved. Developed with care by Novemind.
City of Larnaca > Blog > Business > Ανάπτυξη Γης > H NEWZOE DEVELOPERS LTD ανακοινώνει την έναρξη εργασιών του συγκροτήματος SOPHIA GARDENS
Ανάπτυξη Γης

H NEWZOE DEVELOPERS LTD ανακοινώνει την έναρξη εργασιών του συγκροτήματος SOPHIA GARDENS

Alexandros Elia
Τελευταία ενημέρωση: 18 Μαΐου, 2025 10:11 πμ
Από Alexandros Elia
2 Λεπτά Ανάγνωσης
Κοινοποίηση
ΚΟΙΝΟΠΟΙΗΣΗ
Advertisements

H NEWZOE DEVELOPERS LTD ανακοινώνει την έναρξη εργασιών του συγκροτήματος SOPHIA GARDENS στον δρόμο Λάρνακας Δεκέλειας, κοντά από το εστιατόριο ΒΛΑΧΟΣ.

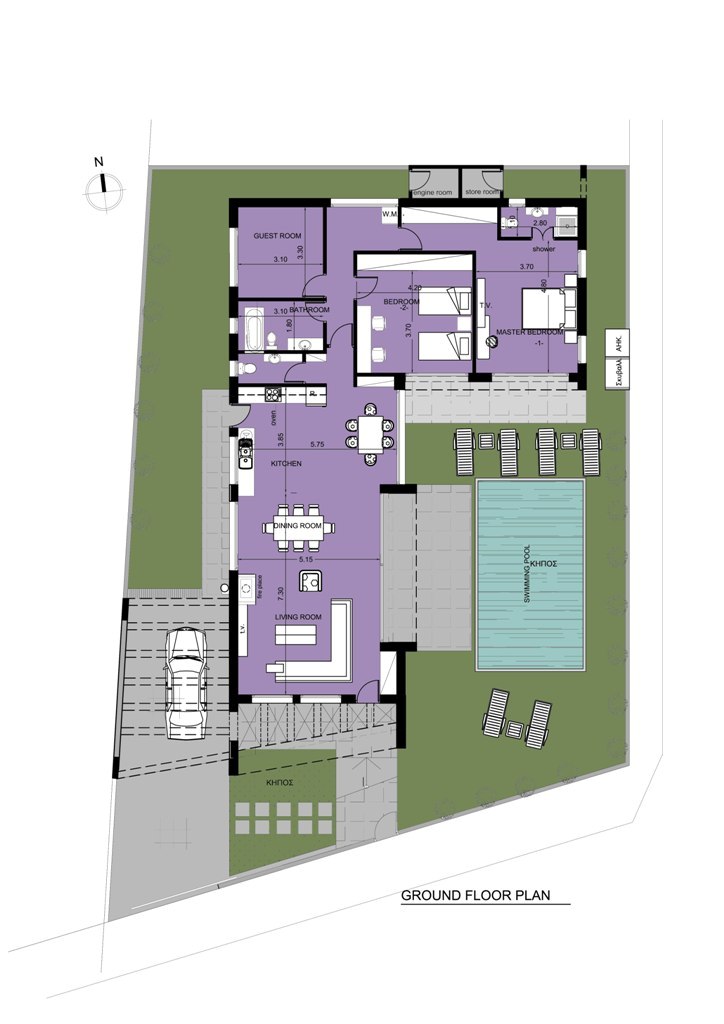
Το έργο αποτελείται από 9 ανεξάρτητες οικίες, εκ των οποίων οι 2 είναι ισόγειες σε μεγάλα οικόπεδα.

Το έργο SOPHIA GARDENS βρίσκεται σε απόσταση 280 μέτρων από το κύμα, σε μια ήσυχη περιοχή με εύκολη πρόσβαση στον αυτοκινητόδρομο, προς Αγια Νάπα και Λευκωσία. Απέχει 15 λεπτά από το διεθνές αεροδρόμιο Λάρνακας και η περιοχή είναι ιδιαίτερα προτιμητέα από τουρίστες που επισκέπτονται συστηματικά στην Κύπρο, καθώς και από Κυπρίους που ζουν στο εξωτερικό.

 

 

Η περιοχή αυτή αποτελεί ”μήλο της Έριδος” για τους επενδυτές που έχουν σχέδια να επενδύσουν στην πόλη τα επόμενα χρόνια, καθώς ξεκινήσαν τεράστιες επενδύσεις όπως το νέο ξενοδοχείο RADISSON BLU BEACH RESORT, τo νέο συγκρότημα τουριστικών διαμερισμάτων (πρώην STAVROS HOTEL), το νέο ξενοδοχείο SOLAAR κ.α. Να τονιστεί πως πρόσφατα έγινε η κατεδάφιση του πρώην ξενοδοχείου BEAU RIVAGE , οπού στη θέση του ανεγερθεί η μεγαλύτερη ξενοδοχειακή μονάδα της πόλης.

Να σημειωθεί ότι τους καλοκαιρινούς μήνες , τέτοιες οικίες στην περιοχή ενοικιάζονται μέχρι 300 εύρω την μερών, με ελάχιστη χρονική διάρκεια μιας εβδομάδας.

Novemind

Δείτε όλες τις πληροφορίες του έργου εδώ

 

W:GRAPHICSpallourtis brochure jan 2018sofia gardensfinal dwgs for katopseisfor coloring Model (1)

 

 

estset

test

Κοινοποιήστε αυτό το άρθρο
Facebook Email Copy Link Print

Developers: Ανυπολόγιστες οι ζημιές στον κλάδο μας

Λευκαρίτης στον Άστρα: Το καλοκαίρι στη Λάρνακα θα βλέπουμε θάλασσα και όχι δεξαμενές

Έρχεται 22όροφος πύργος €50 εκατ. στις Φοινικούδες

Tρ. Κύπρου: Deal €6,2 εκ. για ακίνητο στην Αραδίππου (pics)

Τροία: Έργο αμερικανικών συμφερόντων ύψους €100 εκατ. στην Πύλα

More Popular from Foxiz

Νέα Eπιχειρήσεων

Τα Top 10 ακίνητα στους ισολογισμούς της Τρ. Κύπρου

Alexandros Elia
0 Λεπτά Ανάγνωσης

Τα καταστήματα ZARA ζητούν 29 άτομα για εργασία με μέχρι 1200 ευρώ το μήνα

Alexandros Elia

Πραγματοποιείται σήμερα συνέδριο για την αναβάθμιση

Alexandros Elia
0 Λεπτά Ανάγνωσης
- Advertisement -
Ad image
Νέα Eπιχειρήσεων

Επεκτείνεται η Connected Sky με νέο γραφείο στο Χονγκ Κονγκ

Η εταιρεία, ConnectedSky,  ανακοίνωσε πρόσφατα την επέκτασή  της στην Ασία. Η εταιρεία της οποίας ιδιοκτήτης είναι…

Alexandros Elia
Νέα Eπιχειρήσεων

Η ομορφιά θέλει τον ειδικό της

Η περιποίηση και η ομορφιά δεν είναι εύκολη υπόθεση. Ένα πετυχημένο αποτέλεσμα χρειάζεται τον ειδικό του.…

Alexandros Elia
Νέα Eπιχειρήσεων

Antonis intreview

BLUE AIR     Τι σε ώθησε να εργαστείς σε μια τέτοιου είδους βιομηχανία? Νομίζω η…

Alexandros Elia
Νέα Eπιχειρήσεων

Tus: Στα ελληνικά νησιά από 24 Ιουνίου

Alexandros Elia
Νέα Eπιχειρήσεων

Γενικές Ασφάλειες Κύπρου: Σταθερή προσήλωση στον άνθρωπο

Οι Γενικές Ασφάλειες Κύπρου, από την ίδρυση τους το 1951, διαδραμάτισαν ηγετικό ρόλο στην ανάπτυξη της…

Alexandros Elia
City of Larnaca

Η City of Larnaka φέρνει κοντά σας τα τελευταία νέα, εκδηλώσεις και ιστορίες από τη Λάρνακα, κρατώντας σας συνδεδεμένους με ό,τι συμβαίνει στην πολυσύνθετη πόλη μας.

Νέα & Ενημερώσεις

  • Τοπικά Νέα
  • Νέα Δήμων
  • Πολιτιστικά
  • Κοινωνία
  • Οικονομία
  • Περιβάλλον

Ενότητες

  • Επιχειρήσεις
  • Αθλητικά Νέα
  • Διασκέδαση
  • Τουρισμός
  • Podcast
  • Λάρνακα 2030

Χρήσιμα

  • Διαφημίστειτε Μαζί Μας
  • Ευρετήριο Επιχειρήσεων
  • Θέσεις Εργασίας
  • Εκδηλώσεις
  • Επικοινωνία
© 2025 cityoflarnaka.com | All rights reserved. Developed with care by Novemind.